Объект № 1-88809
только в итаке
в ипотеку
2-комнатная квартира,
г Санкт-Петербург, ул Маршала Захарова, д. 8
Цена: 18 200 000 рублей
Расположение
г Санкт-Петербург, ул Маршала Захарова, д. 8
Площадь
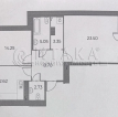
Общая площадь: 73.36 м2
Жилая площадь: 37.75 м2
Площадь кухни: 12.62 м2
Площадь комнат: 23.5+14.25 м2
Жилая площадь: 37.75 м2
Площадь кухни: 12.62 м2
Площадь комнат: 23.5+14.25 м2
Основные характеристики
3 этаж (всего 20)
С балконом
С лифтом
с/у: 2с/уз.
горячая вода: Водопровод
год постройки: 2024 г.
С балконом
С лифтом
с/у: 2с/уз.
горячая вода: Водопровод
год постройки: 2024 г.
Комментарий
ЖК "Огни Залива" расположен на берегу Финского залива в окружении парков, что создаёт благоприятный климат для проживания. Квартира имеет изолированные комнаты на две стороны. С одной стороны открывается прекрасный вид на Дудергофский канал и Финский залив, с другой стороны на городской ландшафт. В данном районе сформирована современная инфраструктура: социальная, транспортная, досуговая. Для любителей рыбалки, одно удовольствие посидеть с удочкой недалеко от дома.Квартира имеет очень удачную и комфортную планировку: большая кухня и коридор, изолированные комнаты, два санузла.В оформлении стен дома использован современный навесной вентилируемый фасад.До метро "Ленинский проспект" и "Проспект Ветеранов" 15-20 минут на общественном транспорте. В ближайшее время откроется станция метро "Юго-Западная" в 5 минутах езды от дома.Выезды на КАД и ЗСД расположены в 10 минутах транспортом.Покупка квартиры попадает под семейную ипотеку!
Контактное лицо
Елена Белик
740-70-40
Объект на карте
КРЕДИТНЫЙ КАЛЬКУЛЯТОР
Сумма кредита:
- USD
- EUR
Срок кредита:
- Мес.
Процентная ставка:
Первый взнос:
- Руб.
- USD
- EUR
РАССЧИТАТЬ
Сумма кредита:
Срок кредита:
месяцев
Процентная ставка:
%
Ежемесячный платеж:
Рассчитать заново
ОСТАВИТЬ ЗАЯВКУ
Похожие предложения

















