Объект № 1-92916
только в итаке
1-комнатная квартира,
г Санкт-Петербург, г Колпино, ул Красная, д. 12, лит. А
Ближайшая станция метро: Площадь Восстания
Цена: 0 рублей
Расположение
г Санкт-Петербург, г Колпино, ул Красная, д. 12, лит. А
м. Площадь Восстания
м. Площадь Восстания
Площадь
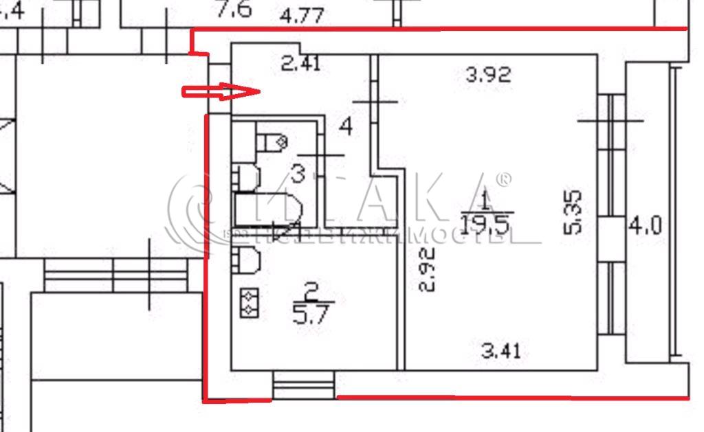
Общая площадь: 34 м2
Жилая площадь: 19.5 м2
Площадь кухни: 5.7 м2
Жилая площадь: 19.5 м2
Площадь кухни: 5.7 м2
Основные характеристики
6 этаж (всего 9)
С телефоном
С балконом
С лифтом
с/у: совмещен.
горячая вода: Водопровод
С телефоном
С балконом
С лифтом
с/у: совмещен.
горячая вода: Водопровод
Комментарий
Уютная квартира в самом центре г. Колпино, с видом на Никольский сквер и реку Ижора. Состояние квартиры жилое. Большая очень светлая и просторная комната выходит окнами на остекленную лоджию. Лоджия остеклена стеклопакетом и утеплена. Уютная квадратная кухня вмещает необходимую кухонную мебель с бытовой техникой и обеденный стол со стульями. В совмещенном санузле находится полноразмерная ванна. Состояние бытовой техники и сантехники хорошее. В прихожей легко поместится шкаф для верхней одежды. На первом этаже дома расположена колясочная, где можно хранить коляски и велосипеды. Дом одноподъездный, сама парадная в отличном состоянии, вход в парадную по электронным ключам. Напротив парадной расположено место для парковки автомобилей. Вблизи дома в шаговой доступности расположены магазины, аптеки, кафе, поликлиники, детские садики и школы. До ж/д станции Колпино 6 минут пешком. Прямая продажа.
Контактное лицо
Ирина Богачева
740-70-40
Объект на карте
КРЕДИТНЫЙ КАЛЬКУЛЯТОР
Сумма кредита:
- USD
- EUR
Срок кредита:
- Мес.
Процентная ставка:
Первый взнос:
- Руб.
- USD
- EUR
РАССЧИТАТЬ
Сумма кредита:
Срок кредита:
месяцев
Процентная ставка:
%
Ежемесячный платеж:
Рассчитать заново
ОСТАВИТЬ ЗАЯВКУ
Похожие предложения



















