Объект № 1-91595
только в итаке
2-комнатная квартира,
обл Ленинградская, р-н Тосненский, г Тосно, ул М.Горького, д. 21
Цена: 5 600 000 рублей
Расположение
обл Ленинградская, р-н Тосненский, г Тосно, ул М.Горького, д. 21
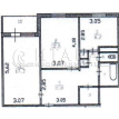
Площадь
Общая площадь: 56.6 м2
Жилая площадь: 30 м2
Площадь кухни: 8.2 м2
Площадь комнат: 17.2+12.8 м2
Жилая площадь: 30 м2
Площадь кухни: 8.2 м2
Площадь комнат: 17.2+12.8 м2
Основные характеристики
1 этаж (всего 5)
С балконом
с/у: раздельный
горячая вода: Водопровод
год постройки: 1988 г.
С балконом
с/у: раздельный
горячая вода: Водопровод
год постройки: 1988 г.
Комментарий
Удобная квартира с отличной планировкой в самом центре города Тосно. Очень зелёный тихий квартал, много свободных мест для парковки машины. Квартира просторная, комнаты изолированные, есть большая универсальная кладовая, в качественном доме ЖСК "гатчинской" серии. Вся необходимая инфраструктура в пешей доступности: магазины, кафе, школа, детский сад, МФЦ, поликлиника, рынок и многое другое. Хорошее транспортное сообщение.Один совершеннолетний собственник. Прямая продажа. Ипотека приветствуется.
Объект на карте
КРЕДИТНЫЙ КАЛЬКУЛЯТОР
Сумма кредита:
- USD
- EUR
Срок кредита:
- Мес.
Процентная ставка:
Первый взнос:
- Руб.
- USD
- EUR
РАССЧИТАТЬ
Сумма кредита:
Срок кредита:
месяцев
Процентная ставка:
%
Ежемесячный платеж:
Рассчитать заново
ОСТАВИТЬ ЗАЯВКУ
Похожие предложения



















