Объект № 1-91179
только в итаке
в ипотеку
встречная покупка
2-комнатная квартира,
г Санкт-Петербург, ул Лиственная, д. 20, корп. 2, стр. 1
Ближайшая станция метро: Озерки
Цена: 20 800 000 рублей
Расположение
г Санкт-Петербург, ул Лиственная, д. 20, корп. 2, стр. 1
м. Озерки
м. Озерки
Площадь
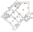
Общая площадь: 77.7 м2
Жилая площадь: 30.8 м2
Площадь кухни: 28.4 м2
Площадь комнат: 15.5+15.3 м2
Жилая площадь: 30.8 м2
Площадь кухни: 28.4 м2
Площадь комнат: 15.5+15.3 м2
Основные характеристики
3 этаж (всего 13)
С телефоном
С балконом
С лифтом
с/у: 2с/уз.
горячая вода: Водопровод
С телефоном
С балконом
С лифтом
с/у: 2с/уз.
горячая вода: Водопровод
Комментарий
Отличная квартира в ЖК Листва бизнес-класса,рядом с парком Сосновка, в собственности.Квартира площадью 77,7м, без отделки,в подарок Покупателю дизайн-проект,спальни площадью 15,5м 15,3м, одна смарт-спальня, со своим санузлом 3,9м,красивым панорамным окном и французским балконом,просторная кухня-гостиная 28,4м с выходом на застекленный балкон 4,0 м ( не входит в площадь квартиры)коридор 10,4м.Красивая отделка входной группы и на этажах.Оборудованы колясочные, благоустроенные детские и спортивные площадки,зоны отдыха.Двор закрыт, видеонаблюдение по периметру дома,в парадной и лифтах.Большой подземный теплый паркинг,спуск в паркинг как на лифте,так и по лестнице.( есть свою парковочное машино-место ,продается отдельно в сотимость квартиры не входит) Район с развитой инфраструктурой!метро Озерки 20 минут пешком, или 5 транспортом.Рядом лесопарк Сосновка , в пешей доступности три Суздальских озера.Муринский парк с аквапарком,антракционами и мн.др.Во дворе дома дет/сад 33 и лицей 101.Рядом фитнес-центр с бассейном Гравитация,рядом МФЦ, магазины Дикси,Пятерочка,ВкусВилл и др.Звоните с 9,00 до 21,00
Объект на карте
КРЕДИТНЫЙ КАЛЬКУЛЯТОР
Сумма кредита:
- USD
- EUR
Срок кредита:
- Мес.
Процентная ставка:
Первый взнос:
- Руб.
- USD
- EUR
РАССЧИТАТЬ
Сумма кредита:
Срок кредита:
месяцев
Процентная ставка:
%
Ежемесячный платеж:
Рассчитать заново
ОСТАВИТЬ ЗАЯВКУ
Похожие предложения

























